+
Samples Video Gallery Profile Presentation

PHOTO GALLERY

INTERIOR DESIGN

Service: Engineering, Architectural - Interior.

Kitchens, Bed Rooms, Children Rooms, Living and Dining Spaces using unique combinations, luxurious views, customized furniture designs, carefully selected textiles, colors, items and much more.

r1 r2 r2 r1 r1 r2 r2 r2 r1 r2 r1 r2 r1 r2 r2 r1 r1 r1 r2 r2 r2 r2 r1 r1 r2 r1 r2 r2 r2
D.Y Villa KSA

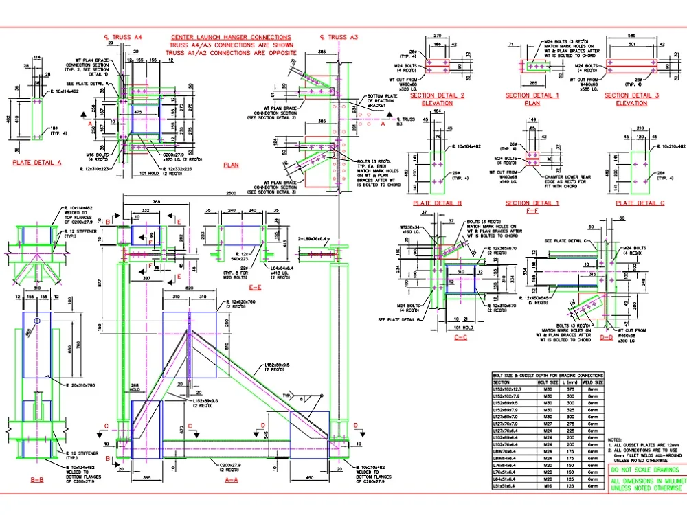
ARCHITECTURE

Service: Engineering - Conceptual - Exterior Design

Detailed design / shop drawing with BOQ and specifications supported with 3d Modeling and engineering studies.

r1 r2 r1 r1 r2 r1 r2
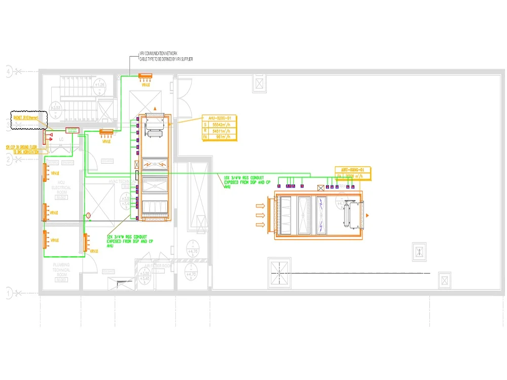
MEP

MEP DESIGN

Service: Engineering - MEP Services

Detailed design / shop drawing for MEP Systems with BOQ and specifications for Electrical, Mechanical, Life Safety, Plumbing, Security, Communication, Informative, Entertainment, Control & Management systems.

r1 r2 r1 r1 r2 r1 r2
MEP

MARKETING MATERIALS

Service: Creative and Marketing Services

Web Design, Social media , Mobile Apps, Marketing Collaterals, Corporate ID, Company profile and presentations, info graphics and portfolio, Promotional Gifts...

r1 r1 r2 r1 r1 r2 r2 r2 r1 r2 r2 r2 r2
MEP

LANDSCAPING

Service: Architectural Design - Landscaping

We have special agriculture experts who supervise the design process for different types of gardens and select successful combinations of plants to fit the design spirit and climate requirements.

r1 r2 r1 r2 r1 r1 r2 r1 r1 r2 r2 r1
MEP